
技术参数
型 号:RZC-**
给料能力:1.0~100t/h
给料精度:±0.5%
物料粒度:<2mm
调节范围:1:5
出料方式:连续
传动形式:摆线减速机
概述:
采用平衡测力的原理设计,是各种无粘性粉状物料进行动态计量的理想设备。物料在进料口和出料口的圆周内均匀流动。由传感器检测物料的重量,通过仪表数据采集完成动态计量。控制喂料部分的转速就可以控制给料流量。
特点:
1.密封结构,适合粉状物料,不会扬尘。
2.给料均匀,运行稳定,易于定量控制。
3.独特的天平式控制结构,灵敏度高,重量检测精确。
4.结构紧凑,相对于皮带给料机节省安装空间,安装维护方便。
5.采用专用仪表控制或者德国西门子PLC控制、可以方便和其它给料机一起组成自动配料系统。
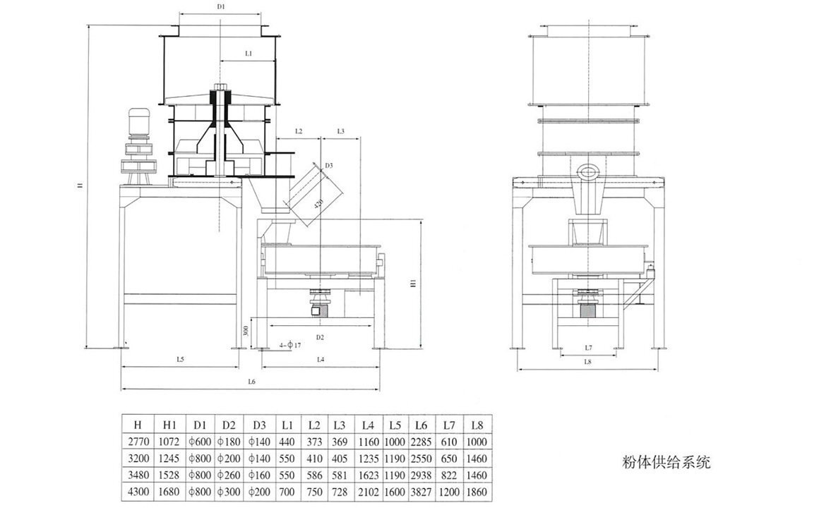
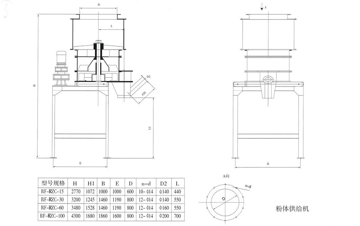
尺寸表:


